Sie sind auf der Suche nach einem stilvollen, variabel nutzbaren Gebäude in perfekter Lage?
Sie freuen sich über historische Ausstattungsdetails und haben ein Faible für denkmalgeschützte Häuser?
Ein zuverlässiger gewerblicher Mieter und eine fast nagelneue Pelletheizung treffen genau Ihre Vorstellungen?
Dann haben wir hier das perfekte Objekt für Sie!
Der voll unterkellerte Halmwalmdachbau mit Schieferdach wurde im Jahr 1829 auf einem 690 qm großen Grundstück innerhalb der Altstadt errichtet und lange Zeit als Klaviermanufaktur genutzt. Das denkmalgeschützte Gebäude ist mit aufwendigen Kreuzstockfenstern und im Inneren mit einer Granittreppe und großen Wunsiedeler Marmorplatten ausgestattet. Es steht frei und ist von einem hübschen Garten umgeben.
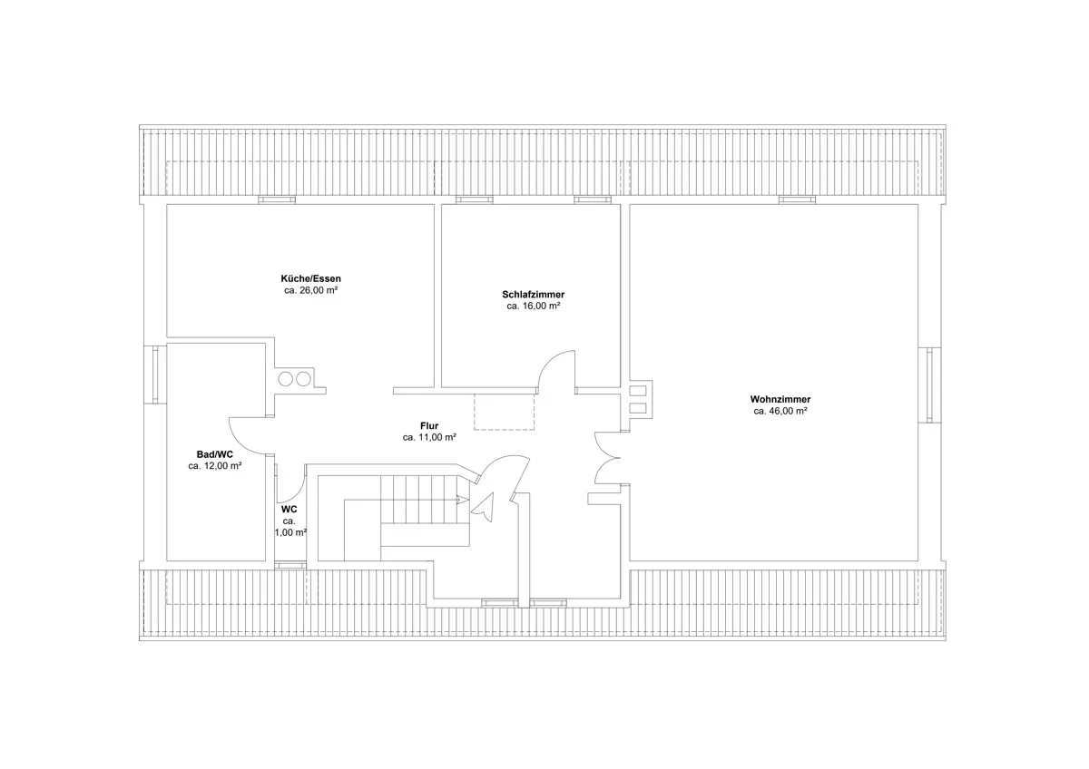
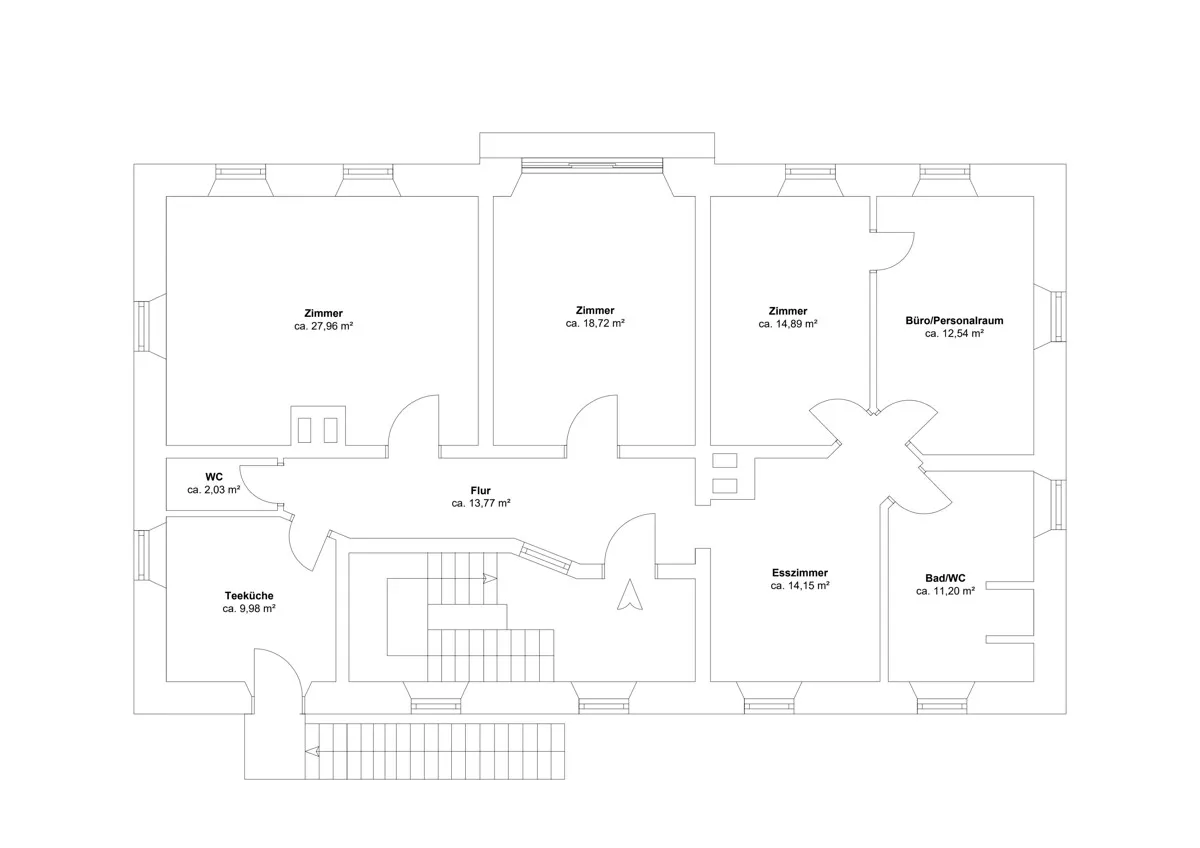
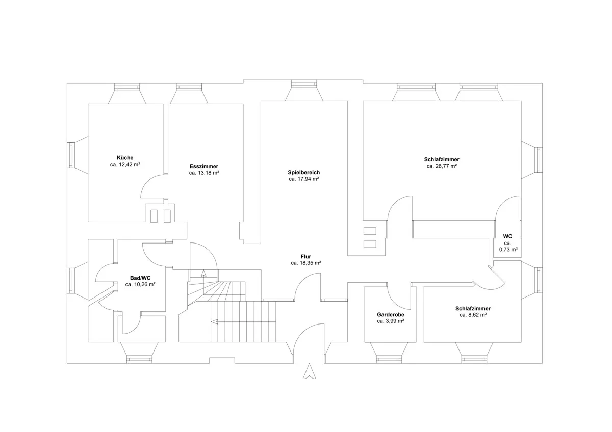
Später wurde jedes Geschoss zu je einer großzügigen Wohnung umgebaut, die zeitweise auch gewerblich genutzt wurden. Helle Räume, ein perfekter Grundriss und viel Licht bestimmen die angenehme Atmosphäre. Dadurch gibt es auch heute noch vielfältige Nutzungsmöglichkeiten: Ob als Mehrgenerationenhaus, für Wohnen und Arbeiten unter einem Dach, als Büro- oder Praxishaus oder wie seit 2003 als Kinderkrippe.
Die kirchliche Kinderkrippe nutzt das Erd- und Obergeschoss zur Kinderbetreuung und das Dachgeschoss als Räumlichkeiten für Verwaltung, Lager und die Mitarbeiter.
Über die Zeit wurden laufend Sanierungsmaßnahmen durchgeführt: Wärmedämmung der obersten Geschossdecke, die Erneuerung des Bades im Obergeschoss, die Sockelputzsanierung, der Einbau einer Außentreppe für die Nutzung als Kinderkrippe, eine Keller- und Außenputzsanierung und als besonderes Highlight die Pelletheizung aus dem Jahr 2022.
Sollten darüberhinaus weitere Investitionen gewünscht sein, können Städtebaufördermittel bzw. eine erhöhte steuerliche Abschreibung in Anspruch genommen werden.
Haben wir Ihr Interesse geweckt? Dann freuen wir uns auf Ihre Kontaktaufnahme!
Das Wohn- und Geschäftshaus befindet sich in zentraler Lage von Wunsiedel, der charmanten Kreisstadt im Herzen des oberfränkischen Fichtelgebirge. Nur wenige Gehminuten entfernt liegt der Marktplatz mit seinem vielfältigen Angebot an Einzelhandel, Gastronomie und Dienstleistungen – ein lebendiger Treffpunkt mit hoher Kundenfrequenz.
Dank der guten Erreichbarkeit über die Autobahn 93 und die Bundesstraße B303 sind umliegende Städte wie Marktredwitz, Bayreuth und Hof schnell erreichbar. Der öffentliche Nahverkehr ist hervorragend ausgebaut, wodurch die Lage auch für Pendler und Kunden aus dem Umland attraktiv ist. Ausreichende Parkmöglichkeiten in der Umgebung sowie nahegelegene Bushaltestellen unterstreichen die gute infrastrukturelle Anbindung.
Wunsiedel selbst bietet eine hohe Lebens- und Standortqualität. Neben einem breiten Kulturangebot – wie den renommierten Luisenburg-Festspielen – überzeugt die Stadt durch ein solides wirtschaftliches Umfeld mit zahlreichen Handwerks-, Dienstleistungs- und Handelsbetrieben. Schulen, Kindergärten, Ärzte und Einkaufsmöglichkeiten befinden sich in unmittelbarer Nähe, ebenso vielfältige Freizeit- und Naherholungsmöglichkeiten im malerischen Fichtelgebirge.
Die Adresse vereint somit die Vorteile einer gut frequentierten Geschäftslage mit der ruhigen Wohnqualität einer gewachsenen Innenstadt. Ob als Kapitalanlage oder zur Eigennutzung – der Standort bietet beste Voraussetzungen für eine nachhaltige Vermietbarkeit und stabile Wertentwicklung.
Die vorstehende Maklerprovision (Käuferprovision) ist mit Abschluss des notariell beurkundeten Kaufvertrages verdient und fällig und versteht sich inklusive MwSt., derzeit 19%.
Der Makler weist darauf hin, dass die von ihm weitergegebenen Objektinformationen vom Verkäufer bzw. von einem Dritten stammen und der Makler für die Richtigkeit und Aktualität der Angaben keine Haftung übernimmt, es sei denn, der Makler handelt grob fahrlässig. Der Zwischenverkauf bleibt vorbehalten.
Im Übrigen gelten unsere Allgemeinen Geschäftsbedingungen, welche unter www.immo-ideal.de sowie in unserem Büro einsehbar sind.
Die Grundrisse und Lagepläne im Exposé sind nicht maßstabsgetreu und können vom tatsächlichen IST-Zustand abweichen.